城“室”街巷
CITY BLOCK INSIDE
BONELESS
服装店郑州银泰分店
时间 :2023.8-2023.10
位置 :河南省郑州市金融岛郑州银泰商业
面积 :200平米
客户 :BONELESS
状态:已建成
设计团队:Ming,王瀚平,孙竟博
灯光设计:张帆工作室
文字:Ming
摄影 :立明
	时间 :2023.8-2023.10
位置 :河南省郑州市金融岛郑州银泰商业
面积 :200平米
客户 :BONELESS
状态:已建成
设计团队:Ming,王瀚平,孙竟博
灯光设计:张帆工作室
文字:Ming
摄影 :立明
BONELESS
FASHION STORE @ YINTAI ZHENGZHOU
TIME:2023.8-2023.10
LOCATION:Yintai, Financial Island Jinshui District, Zhengzhou, Henan
AREA:200㎡
CLIENT:BONELESS
STATUS:Completed
DESIGN TEAM:Ming,Hanping Wang,Jingbo Sun
LIGHTING DESIGN:Zhangfan Studio
Text:Ming
PHOTOGRAPH:Liming Fang
TIME:2023.8-2023.10
LOCATION:Yintai, Financial Island Jinshui District, Zhengzhou, Henan
AREA:200㎡
CLIENT:BONELESS
STATUS:Completed
DESIGN TEAM:Ming,Hanping Wang,Jingbo Sun
LIGHTING DESIGN:Zhangfan Studio
Text:Ming
PHOTOGRAPH:Liming Fang
 
 
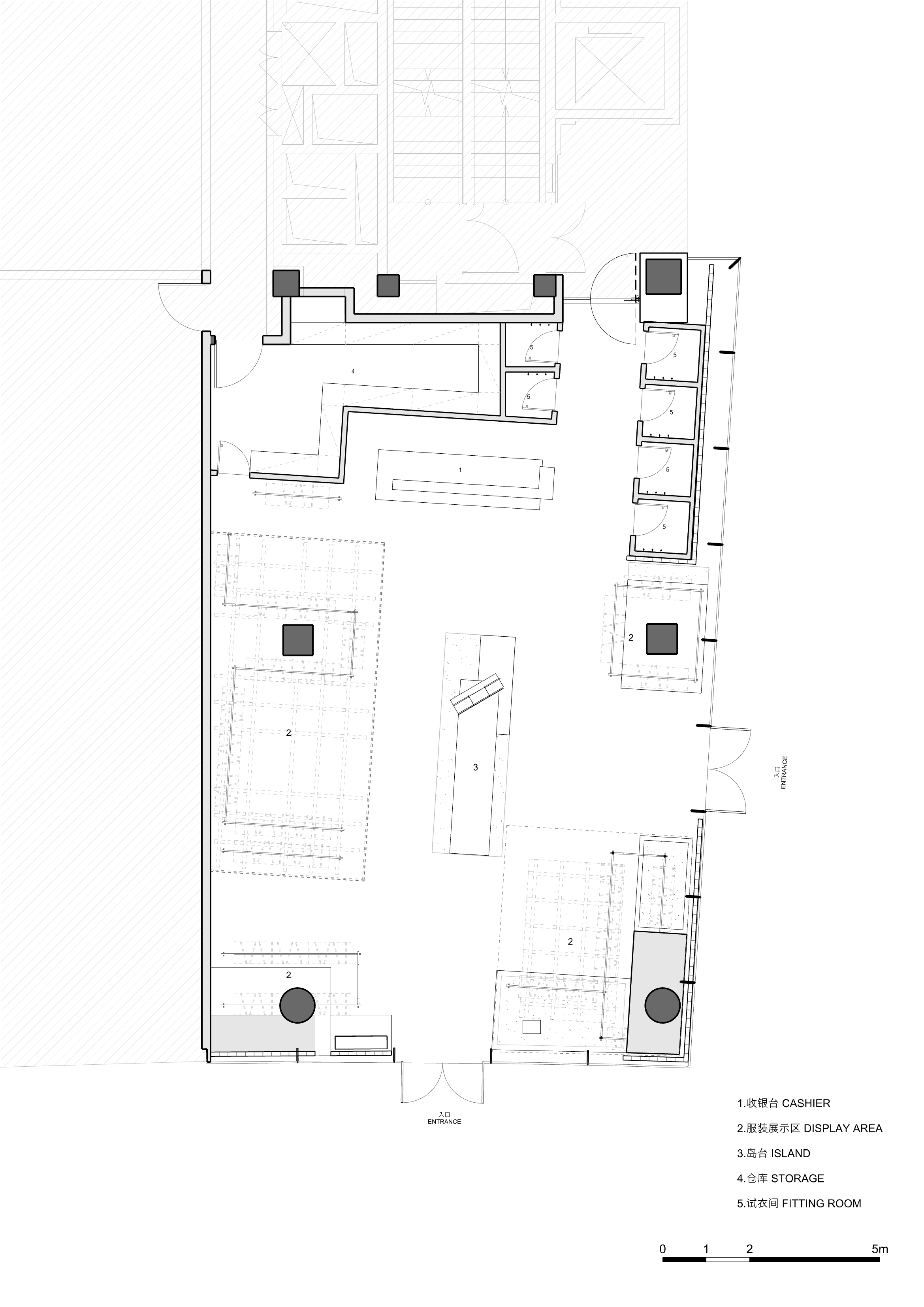
本项目位于郑东片区新开发的金融岛银泰商场里,这是一个呈环形的巨大体量的综合体,围绕着一个椭圆形的人工湖,整个建筑呈退台状环湖而建,在钢筋混凝土的框架与楼板外包裹着一圈玻璃幕墙。我们设计的商铺位于这个巨构建筑的地面层,正对着湖面。
This project is
located in the newly developed Financial Island Yintai Mall in the Zhengdong
area. It is a large complex in a circular form, surrounding an oval artificial
lake. The entire building is constructed in a stepped manner around the lake,
enveloped by a circle of glass curtain walls over a reinforced concrete frame
and floor slabs. The retail space we designed is situated on the ground floor
of this massive structure, facing the lake.
 
 
 

铺位西北两侧是分户隔墙,东南相邻的两侧边界是临室外的不可拆卸的玻璃幕墙,也就是两个对外展示面。立面的虚实关系是商业零售设计的关键——虚的部分有利于店内空间及商品的展示,而实的部分则有利于品牌形象的塑造。面对无法拆除的玻璃幕墙,我们选择独立于场地边界,将幕墙看作开放的界面。我们采用了城市街区设计的手法塑造了一系列小体量的独立“建筑”来用作商品的展示,这些“建筑”在这个200平米近似长方形的空间中结合四个结构柱,把住了四个角落,这些自由体量挤出的剩余空间则是消费者的动线空间,中心摆放着一个低矮的岛台,像是开阔广场上的纪念碑,在室内形成了独特的街巷广场空间。
On the northwest
sides of the premises are partition walls, while the southeast boundaries are
non-removable glass curtain walls facing the outdoor area, forming two external
display surfaces. The relationship between solidity and transparency on the facade
is crucial in retail design—transparent sections are advantageous for
showcasing the interior space and products, while solid elements contribute to
shaping the brand image. Faced with the unremovable glass curtain walls, we
chose to treat them as open interfaces, independent of the site boundaries. We employed urban
block design techniques to shape a series of small independent
"buildings" for product displays. These "buildings,"
combined with four structural columns in this approximately 200-square-meter
rectangular space, secure the four corners. The residual space squeezed out by
these free volumes serves as the consumer's circulation space, with a low
island platform placed at the center, resembling a monument on an open square,
creating a unique street-lane square space indoors.




 
 
同时,我们对每一个小体量进行了雕琢,一方面考虑室外看向室内的通透性;另一方面考虑室内“街巷”的多样性。我们以混凝土空心砖、透明LED、多层交叠的轻钢龙骨以及展示衣杆勾勒出的轮廓为虚,以厚重的粗谷粒混凝土涂料、黑色做旧金属及深色木饰面为实,营造出了虚实相映,精致而充满质感的空间体验。
Meanwhile, each small volume was carefully sculpted. On one hand,
considering the transparency from the outside to the inside; on the other hand,
considering the diversity of the indoor "streets and lanes." Using
concrete hollow bricks, transparent LED, multi-layered overlapping light steel
keels, and outlines created by display clothing hooks for the virtual, and
solid elements such as heavy coarse-grain concrete coatings, black-aged metal,
and dark wood veneers for the real, we crafted a space that juxtaposes solidity
and transparency, delivering a refined and textured spatial experience.
 
 
 
 
 
 
 
16–02–2024